9月份的土拍,潜江共计出让了6宗住宅地块,其中Q[2020]17号地块已经开始宣传( 东升·紫悦府),涉及楼栋、户型等信息,具体的内容请往下看。
项目位于潜江市城南片区,红梅路以南,总占地面积约20815㎡,容积率2.7。该地块于今年9月份被东升地产以总价1.55亿元拍下,楼面价2758元/㎡。

东升·紫悦府是东升地产在潜江开发的第五个项目,是继盛世东方、盛世东城、盛世龙城、盛世东方和院后又一升级钜作。
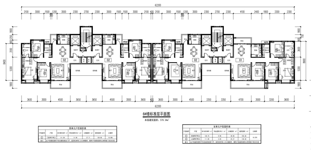
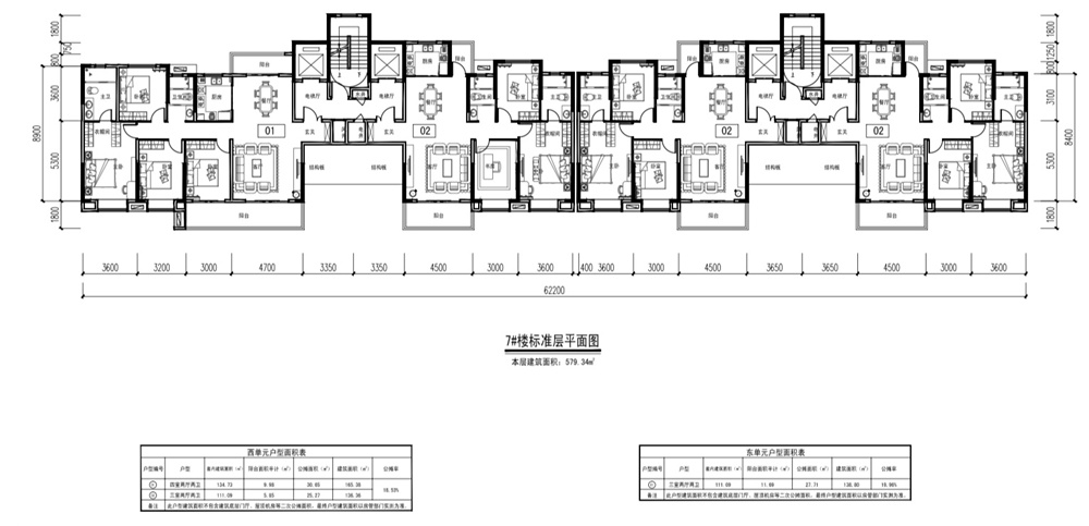
从规划设计来看,整个项目共计7栋17F高层组成,靠红梅路设有两个小区出入口和一个地库出入口。

整个项目共计房源366套,项目主打筑造舒适生活大宅,建筑面积约120-165㎡三室-四室户型,两梯两户,均为毛坯交付。




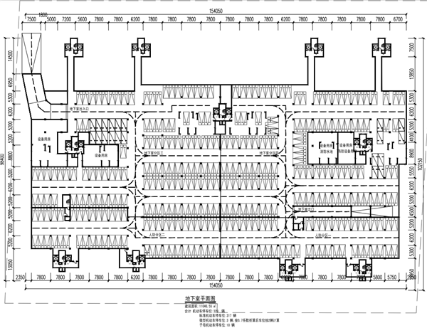
整个项目配套建设地下停车位329个,地上停车位37个,车位比达到1:1。

另外,项目的效果图也已出炉,可以从中大概感受下日后建成的效果。(仅供参考)


项目有一个很大的优势——区位。项目地处潜江市城南片区,红梅路以南(劳动就业中心旁),毗邻城市主干道-章华南路、红梅路,一横一纵两大干道打通东西,承接南北,出入双向六车道,门口就是公交站,有D01路、104路、105路、201路公交车经过,出行很方便。此外,项目离马家台小学、园林二中南校区很近,小孩上学步行几分钟就到了,还有园林高中、德风学校、潜江中学、华师附中环伺。

项目区位图

园林二中南校区

马家台小学

门口就是公交车站
上周,小编去踩盘的时候,也前往该地块实地看了下。项目已经在动工了,目前正火热建设中。

施工现场实拍

施工现场实拍
项目展厅也已正式开放,有意向的买房者可至东升·紫悦府城市展厅(中心城一楼2号门大厅屈臣氏旁)了解新项目详情。
欢迎有买房疑问的网友联系房产小编(微信号:qjfang100),小编会为您答疑解惑,让您买房更省心。

