距离新冠肺炎疫情爆发至今,已经有将近两个月了。这段时间里,我们哭过、笑过、骂过、感动过,也认真地为迎接疫情后的新生活考量过。而说起“劫后新生”的安排,被禁足在家中两个月、体会了老旧设计诸多不便之处的人们也纷纷感叹:是时候,考虑换个更好的房子了。
想必很多人都憧憬着这样一套好房子:有较小的面积,有较低的总价,却又有着更多的功能布局,健康环保且阳光通透。何为健康居家的好产品?下面,就让我们一起来看看吧!
本篇将重点讲述105户型的相关情况。此例举户型产品(面积在105㎡左右)为碧桂园数种畅销产品之一,多年来,多个项目大量采用,且广受消费者好评。接下来,将从产品整体介绍、设计思路方法、特色亮点分析等多个角度,作出专业的解读。
一、户型整体介绍
105户型平面示意如下图:

【105户型设计草图,具体以各营销中心输出为准,下同】
此户型坐北朝南布局方正,主卧朝南配备独立的卫生间,两个次卧一个朝南一个朝北,两个卫生间都朝北向。客厅连通南向的双面宽大阳台,将采光的有利朝向都提供给了卧室及客厅在这种布局下,可以保证整个屋子阳光满满。

【105户型通风效果示意图】
户型南北通透,可形成良好的穿堂风,使得病菌无法在空气中长期停留,也是保证您居家健康生活的必需。
二、布局和流线设计
说一个户型的好坏,要从户型的布局分区和流线设计上来判断。
我们先来看一下此户型的动静布局:

【105户型动静分区示意图】
图中蓝色的是静区,也就是休息区;黄色的是动区,也就是居家活动区域。两个区域通过一条走道隔离开,当您在卧室休息时,可以免受正在客厅看电视或者在厨房做饭亦或是在阳台上洗衣服的家人产生的噪音干扰。同样的,您也可以在周末的清晨,在不惊动家人的情况下,悄悄的在厨房为他们准备好美味早餐,每天都是surpurise!
下面我们再来看看流线组织:

【105户型居家流线组织示意图】
上图中蓝色的是归家休息流线,从入户门直通卧室;黄色的是餐厨流线,买菜归来,直接进入厨房,摘菜洗菜做饭,都可以一条流线完成,跟其他流线互不打扰;红色的是居家生活流线,刚回家的您可直接经由玄关进入客厅,与家人或者朋友在可以聊天看电视,同样不会打扰到其他家人。
三、户型平面尺寸介绍
在设计师精巧的设计下,户型平面布局方正,无异形、逼仄的空间;每一个尺寸经过精心推敲,实现面积利用高效化,让您物有所值。
经过长期的经验总结,玄关处净尺寸为约1.6米的情况下最为舒适——这个“约1.6米”包含了为鞋柜预留的35厘米,入户门的约1.05米,加上 两边安装门套而预留的各10厘米。尺寸精确,毫不浪费又能恰好满足您的需求。


【105户型玄关部分尺寸草图及实景照片】
厨房采用U型布局,高效利用空间。为保障更好的餐煮体验,我们在厨房设置了双扇推拉门,并且尽可能地将门的尺寸做大到约1.6米。


【105户型厨房部分尺寸草图及实景照片】
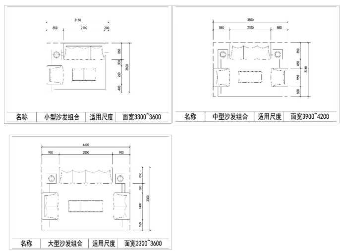
客厅部分:设计客厅尺寸需要适配摆放沙发的需求。沙发常规尺寸有三种类型,会根据户型的客户需求,合理选型。


【105户型客厅部分设计草图】
再看主卧,通常床的长度为2-2.1米,电视柜宽度一般为35厘米左右。此主卧轴线尺寸约3.3米,净尺寸约3.1米,中间留有65-75厘米的走道空间(通常单人走道的宽度约为60厘米),纵向上为两个床头柜留足了约50cm*50cm的空间,还利用衣柜的L型拼接围合出了一个衣帽间。这样既合理的利用了每一寸空间,又解决了套卫门对着床的不利因素。每一分的空间都尽可能的合理利用。


【105户型主卧部分尺寸草图及实景照片】
次卧的设计里,通常人们会配备1.2米*2米的单人床。不过,为了满足客户多样的使用需求,我们把次卧的开间设置在约2.8米。这样即使配备1.5米*2米的双人床,在采用壁挂电视的情况下,也留有足够的走道尺寸,给您留下充足的自由发挥空间。
此户型还贴心配备了约2.9米*1.8米的干湿分离式卫生间。洗手台坐便区为干区,淋浴间为湿区。


【105户型卫生间部分尺寸草图及立面结构示意图】
四、可变空间设计
此105户型配备了约1.8米大进深的阳台,同时将生活阳台与普通阳台进行了整合,做成了南向双面宽,长度约6.5米的大阳台。这样做的好处就是南向视野及采光好,同时增加了阳台的空间,使得在阳台上的居家及娱乐活动有更多种可能。对于这种尺度的阳台来说,你可以发挥充足的想象,比如把它改成健身房,比如家庭聚会时摆上两桌麻将,再比如干脆把它改造成阳光房。

每个男人都梦想拥有自己的一间书房,北侧的次卧,在需要的时候也可以改造成书房使用,在疫情必要的时间点,是您居家办公的必备房间。

【105户型书房改造示意图】
最后说到现在和大家都息息相关的疫情问题,此户型的主卧为套间,拥有除餐煮以外的完整生活空间,可以当作很好的居家隔离用房间,这样既方便家人照顾,也不会造成过多的接触,从而增加感染风险。

【105户型卧室改造示意图】
通过全尺寸开间飘窗设计,可以让房间内的人也能感知外界的阳光和绿叶。
碧桂园也致力于在有限的空间中开发出更多供您收纳储物的可能性,满足您的日常需求。

【105户型中可用储物空间示意图】
疫情期间长时间足不出户的隔离生活,会对我们的居家理念产生巨大的冲击;优秀的设计将会迅速脱颖而出,得到广大消费者的青睐。为了打造更多能满足购房者在新时期的新需求产品,让更多消费者住上舒适的新居,碧桂园团队一直在努力。
近期我们将逐步对其他优质产品进行解读,供更多的朋友们参考,敬请关注,恭迎品鉴。
