潜江房网
您当前位置:潜江房网>潜江楼市>小编说房
  • 房价太高 潜江哪块区域买房比较划算!

         这年头买房难,在房源较少的情况下买房更难,还有就是在房源也少价格又上涨的情况下买房更是难上加难。但是也阻挡不了想要拥有一套房属于自己房子的网友们,那么在这样的环境下想要在我们大潜江买房,该怎么办呢?又从哪里下手呢?     其实,对于不少在外工作,可能近几年对于潜江的情况不是太了解。现在城东区域和城南区域都在规划发展,相对的公共...[详细]

    小编说房 2017-08-22 09:25:31
  • 揭秘:你的房子买回来变小了,怪我咯!?

        最近有很多网友咨询小编,买来的房子并没有实际中的面积那么大!很是郁闷。其实,真正的“元凶”就是我们耳熟目染的公摊面积惹的祸。为了让大家了解公摊面积,同时在以后的买房过程中避免这样的困扰,小编在这里给大家普及一下这方面的知识。  想必大家都知道公摊面积,但是小伙伴们你们会算吗?(会算的自动忽略看下面更精彩内容哦!)  公摊面积=商品房的建筑面积-套内建筑面积  其实简单的...[详细]

    小编说房 2017-08-18 16:07:32
  • 房子卖给子女?赠给?继承?这样最合适

      目前来看,房屋过户主要分为三种方式:继承、赠与,以及买卖。  不过这三种方式分别面临着不同的操作流程以及法律风险,所要缴纳的费用也各不相同。  房子不是你想送就能送的  不少人可能会在心里嘀咕:自己的房子送给子女也要掏钱吗?答案是肯定的。按照大部分一线城市的情况(北上广深除外),以一套面积为90平米,市值300万的普通住房为例,子女受赠想要拿到房产证,前前后后则需要花掉将近13万!那这钱都花在...[详细]

    小编说房 2017-08-18 09:46:20
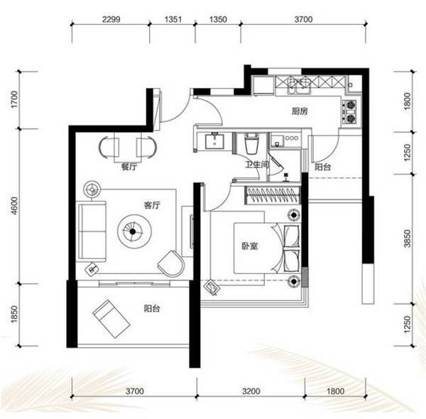
  • 买房看户型,户型布局上的那些猫腻你知多少

      攒了多年的钱,好不容易凑了个首付,当然要选一个满意的房子。  怎样的房子才是好呢,在户型图上就能看个大概。来张一般的户型图,请问你看懂了多少?  房间布局你肯定是看懂了,但里面的很多猫腻你一定不知道!  户型图体现出住房的平面空间布局,对各个独立空间的使用功能、相应位置、大小都进行了描述,可以直观的看清房屋的走向布局。  户型在某些时候是需要先天不足后天补的,所以了解户型的可变结构很重要。比如...[详细]

    小编说房 2017-08-17 09:52:36
  • 13步全攻略教你如何使用军人住房公积金买房

      大家都知道,住房公积金买房的利率比商业贷款低,利息自然也低,这是上级部门对现役军人实施的一项暖心政策,深受广大官兵的喜爱和欢迎。但是此项惠军政策也有限制要求,必须是军人的首套住房,所以之前买过房子的同志就不再享受了。  那么申请住房公积金买房的具体流程和注意事项有哪些呢?下面就是具体的方法步骤了,赶紧来瞧一瞧吧。  第一步:在买房的前一年一定要申报一下个人的购房需求。这点非常关键,很多人都不清...[详细]

    小编说房 2017-08-16 15:58:46
  • 露台这么美,看来在潜江买房就要买顶楼

      为什么买房要买顶楼?  因为可能会捡到一个大便宜,买顶楼送开放式露台啊!  在很多都市情感剧中,顶楼的露台是一个非常实用的场景:  男女主角的感情在那里升温;隐藏多年的心结在那里打开;一群好友喝酒纵乐的狂欢趴在那里举行,警察抓坏蛋的刺激场面在那里上演   露台理念  说到“露台”这个承载着很多人生活情愫的别致空间,脑子里就会溢出有关浪漫、惬意的场景。  纵观现代建筑形态,露台已成为品...[详细]

    小编说房 2017-08-16 08:30:17
  • 买房之后怎么迁户口?最全攻略拿去不谢!

      买房户口迁移相关政策  户口迁移是在居民常住地发生改变后,将户口迁到现住地的方式。户口迁移的方式有多种,其中买房户口迁移就是其中一种。购房者在买房后,实际入住、取得产权证,满足其他条件后就可以将户口迁入房屋所在地。但是办理买房迁户口手续之前,不要忘记将资料准备充足。购房者若是贷款买房,是否可以将户口进行迁移?购买二手房户口迁移申办条件和所需资料有什么?  买房迁户口的条件  申请办理买房迁户口...[详细]

    小编说房 2017-08-14 16:18:49
  • 房产证上名字越多 税款越多 真的假的

           很多人会以为,如果房产证加了自己的名字,那房子就有我的一份,但事实并非如此。例如,结婚前买的房子,就算是写了两个人的名字,如果闹上法庭,没有证据能证明你出了钱 ,写上名字也是白搭的。       此外,房产所有权的主要取决于房管局的房产登记,如果房产证与不动产登记簿信息不一致的,以不动产登记簿为准。所以,...[详细]

    小编说房 2017-08-14 15:34:44
  • 现在教你在潜江买房怎样看沙盘淘好房

      沙盘是购房者接触楼盘的第一手信息,也是开发商不惜重金去包装楼盘的第一环节,只有在沙盘中充分地了解和落实每一细节之后再作出购房抉择,才不至于被开发商轻易地蒙混过关。  现在教你在成都买房怎样看沙盘淘好房。  沙盘,其实就是小区楼盘模型,包括小区规划的总体沙盘和部分户型沙盘,楼盘一般都会在营销中心摆放沙盘模型。一个高档楼盘的沙盘据说要花掉几十万的制作费用,可以说,沙盘的制作质量与楼盘的品质是存在某...[详细]

    小编说房 2017-08-11 16:22:19
  • 潜江买房看准这10个细节 舒适房子到碗里来

        买房是大事。地段、周边设备等决定性价比,细节决定它是否更舒适。买房注意下面这10个小常识,可以使你的买房更加顺利。同时,你掌握了这些筹码,就掌握了砍价的主动权。  这三样,不买!  一、不买临街。噪音太大,即使是一条小路,也有发展成菜市场的潜力。  二、不买顶层。顶层容易出现漏水现象,虽然能修理但耗时耗力,修理时间可能被无限延长。  三、不买带厨房下水道的地下室,否则崩...[详细]

    小编说房 2017-08-11 16:00:01
获取优惠